Swan Dive Apartment Complex
A design and modeling project for a fictional construction company
Project Overview
Role
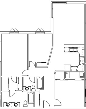
I was responsible for designing and modeling Unit 1, creating the initial AutoCAD layout and the final Revit model. I also contributed to the overall site plan and project documentation.
Project Duration
Spring 2022 Semester
Key Skills
AutoCAD · Revit · Architectural Design · Floor Planning · Site Layout · Project Management
Tools/Software
AutoCAD · Revit
Project Description
The Challenge
The objective of this project was to design a functional and visually appealing apartment complex for a fictional construction company, “Archer Construction.” The design needed to meet specific goals, including a positive curbside appeal, affordable landscaping, a minimum of three floors, and at least seven rooms per floor. The final complex, named “Swan Dive,” needed to be a well-organized and appealing living space for future residents.
The Approach
I designed a five-story apartment complex with ten rooms per floor. The design prioritized natural light and an efficient layout for five different room styles. I was specifically tasked with designing and modeling Unit 1. While the initial layouts for the other rooms were created by others, I was responsible for the entire Revit model, which involved creating my own floor layout and putting all the rooms together. This process involved ensuring that the complex was both functional and visually appealing, with a logical flow between rooms. The final design of the apartment complex included a site plan with parking in the back, a fountain by the road, and tree-lined entrances to enhance the aesthetic.
The Outcome
The project successfully delivered a comprehensive design for the Swan Dive apartment complex. The final design featured five floors with a variety of unit styles, all created to maximize natural light. The site plan and exterior elements were designed to create a pleasant and high-quality living environment. This project provided hands-on experience in architectural design and technical drawing, demonstrating the process of taking a project from an initial concept to a fully realized design using industry-standard software.
Visual Showcase































Official Report
If you would like to review the full details of this project, you can download the complete reports here:
